



✅512.48㎡(158.95坪)
(解体後更地でのお引渡しとなります)
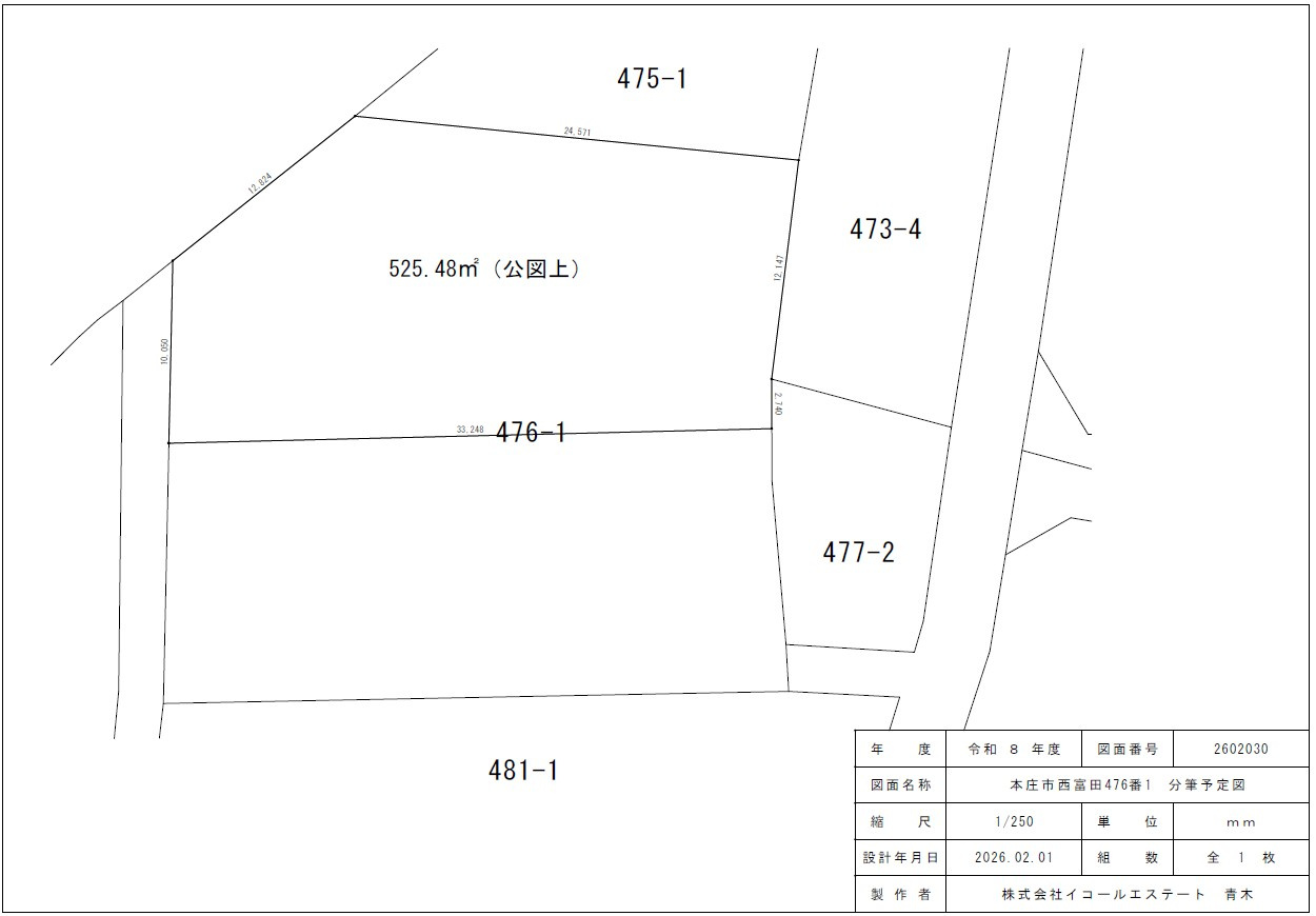
ゆとりある525.48㎡(158.95坪)の敷地が魅力の物件です
人気の高い平屋建てにも十分対応できる広さがあり、開放感のある住まいづくりを実現したい方にぴったり✨
1㎞圏内に本庄南小学校・本庄南中学校が位置しているので、お子さまの通学も安心できる環境が整っています
さらに、本物件は第2種住居地域に位置しており、住宅だけでなく小規模な店舗や事務所なども建築可能。
将来的な活用の幅が広く、住まいとしても資産としても魅力のあるエリアです
広さを活かした理想の住まいづくりができるだけでなく、生活利便性や教育環境も整ったバランスの良い立地。
“暮らしの自由度”と“将来性”をどちらも大切にしたい方におすすめの物件です✨
気になる方は、ぜひイコールエステートまでお気軽にお問い合わせ下さい☆
TEL 0276-55-4823
FAX 0276-55-4825
✉️info@hhequal.com
#不動産 #不動産会社 #不動産売却 #土地活用 #不動産相続 #本庄市不動産 #本庄市不動産会社 #本庄市不動産売却 #本庄市外構工事 #本庄市土地 #本庄市相続 #本庄市空家 #本庄市解体 #本庄市土地情報











